
Büro Leutkirch (Allgäu)
Memminger Straße 8
88299 Leutkirch
Telefon: +49 (0) 7561 / 820 91 - 50
info@oesterle-immobilien.de
Büro Lindau (Bodensee)
Langenweg 39
88131 Lindau
Telefon: +49 (0) 8382 / 279 280 - 0
lindau@oesterle-immobilien.de
Büro Stuttgart
Stuttgarter Straße 83
70469 Stuttgart
Telefon: +49 (0) 711 / 220 594 47
stuttgart@oesterle-immobilien.de













Zum Verkauf stehen 2 zusammenhängende Gebäude im Zentrum von Isny i. A. in der Fußgängerzone. Die genauen Baujahre der Gebäude sind unbekannt, nach vorliegenden Unterlagen sind sie ca. 1900 und 1962.
Das Wohn- und Geschäftshaus mit insgesamt ca. 957 m² Wohn- und Nutzfläche in bester Lage von Isny i. A. verfügt über große Gewerbeflächen im EG und 1. OG, 3 Wohnungen über 2 Geschosse verteilt, Ausbaufläche im Dachgeschoss und Kellerfläche. Das Objekt ist renovierungsbedürftig und bietet ein sehr großes Entwicklungs- und Gestaltungspotential.
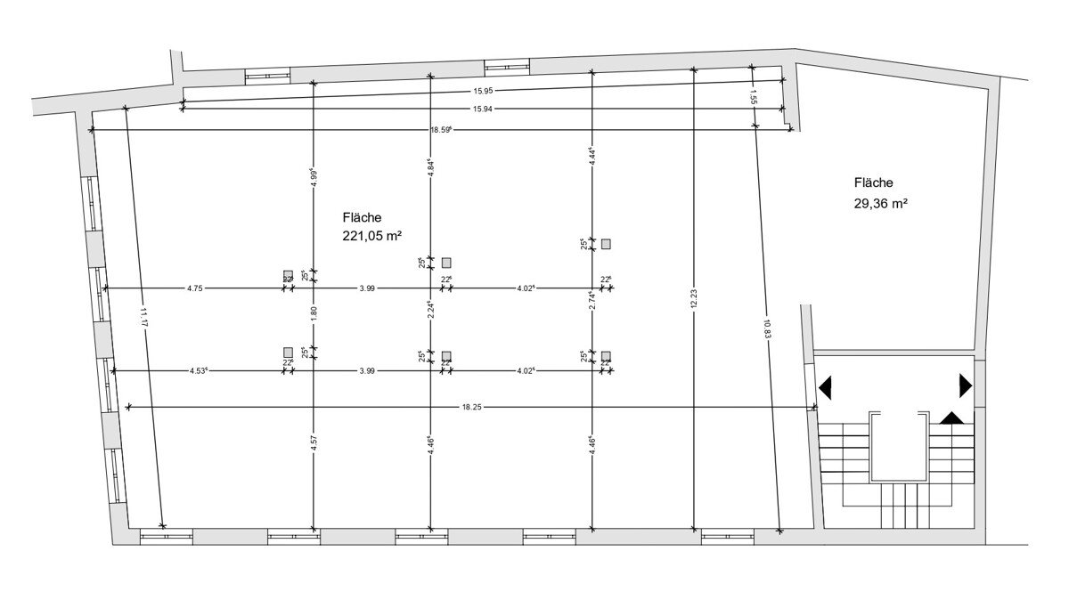
Im Erdgeschoss befindet sich eine große Gewerbefläche mit Schaufensterfront zur Wassertorstraße, die Nutzfläche beträgt ca. 314 m².
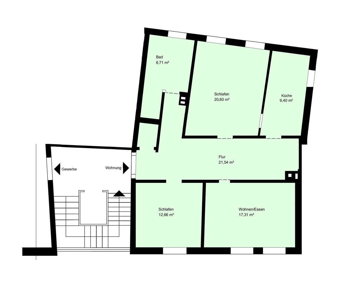
Im 1. Obergeschoss ist 1 Wohnung mit ca. 88 m² Wohnfläche sowie eine Gewerbefläche mit großen, bodentiefen Fenstern zur Wassertorstraße und einer Nutzfläche von ca. 253 m². Die Wohnung wird derzeit renoviert und ist kurz vor der Fertigstellung.
Das 2. Obergeschoss besteht aus 2 Wohnungen. 1 Wohnung wird derzeit renoviert und ist ebenfalls kurz vor der Fertigstellung. Die 2. Wohnung ist in ihrem ursprünglichen Zustand und sanierungsbedürftig. Die Gesamt-Wohnfläche im 2. OG beträgt ca. 302 m².
Im Dachgeschoss ist Ausbaufläche von rund 295 m² vorhanden. Die Gebäude sind mit einer Fläche von ca. 300 m² komplett unterkellert.
In der Gewerbeeinheit im EG befindet sich ein Aufzug, der in den 80er Jahren eingebaut wurde und den Keller, das 1. OG und das DG erschließt. Im Treppenhaus könnte ein gemeinschaftlicher Aufzug zur Erschließung aller Ebenen eingebaut werden.
Es existieren teilweise Umbaupläne eines Architekten.
Bei der Grundstücksgröße handelt es sich um einen Ca.-Wert, da das Grundstück noch geteilt und vermessen werden muss.
Die zum Verkauf stehende Wohn- und Geschäftshaus befindet sich in absoluter 1A-Lage im Herzen der historischen Altstadt von Isny im Allgäu. Direkt in der stark frequentierten Fußgängerzone gelegen, profitiert die Immobilie von einer hervorragenden Sichtbarkeit und einer hohen Passantenfrequenz. Der Standort ist geprägt von attraktiven Einzelhandelsgeschäften, Gastronomie sowie vielfältigen Dienstleistungsangeboten, die eine lebendige Einkaufsatmosphäre schaffen.
Isny im Allgäu verfügt über ein Einzugsgebiet von rund 30.000 Personen, das die Stadt als zentralen Versorgungsstandort der Region etabliert. Neben der Funktion als Einkaufs- und Versorgungszentrum zeichnet sich Isny durch seine hohe touristische Bedeutung aus. Als anerkannter Luftkurort am Rande des Allgäus zieht die Stadt jährlich zahlreiche Gäste aus dem In- und Ausland an. Die malerische Altstadt, ein breites Freizeitangebot sowie die Nähe zu beliebten Ausflugszielen wie dem Bodensee, den Allgäuer Alpen oder dem benachbarten Österreich sorgen für eine stetig wachsende Besucherzahl.
In Kombination aus lokaler Kaufkraft, regionalem Einzugsgebiet und touristischem Zustrom ergibt sich ein hochattraktiver Standort für Einzelhändler, Gastronomen oder Dienstleistern mit hervorragenden Umsatzpotenzialen. Gleichzeitigt herrscht in Isny ein großer Bedarf an Wohnungen.
© 2026 - Oesterle GmbH