
Büro Leutkirch (Allgäu)
Memminger Straße 8
88299 Leutkirch
Telefon: +49 (0) 7561 / 820 91 - 50
info@oesterle-immobilien.de
Büro Lindau (Bodensee)
Langenweg 39
88131 Lindau
Telefon: +49 (0) 8382 / 279 280 - 0
lindau@oesterle-immobilien.de
Büro Stuttgart
Stuttgarter Straße 83
70469 Stuttgart
Telefon: +49 (0) 711 / 220 594 47
stuttgart@oesterle-immobilien.de









| Kennung | KW0231_LE |
| Lage | 88410 |
| Baujahr | 1991 |
| Wohnfläche | 45.00 m² |
| Kaufpreis | 115000.00 € |
| Provision für Käufer1 | 3,57 % inkl. MwSt vom Kaufpreis |
| Energieausweistyp * | Verbrauch |
| Energiekennwert | 148.00 kWh/(a⋅m²) |
| Ausweis gültig bis | 08.10.2027 |
| Befeuerung/Energieträger | Gas |
| Baujahr | 1991 |
Wohnen in naturnaher Stadtnähe - Ihr neues Zuhause in Bad Wurzach
In zentraler und dennoch angenehm ruhiger Lage erwartet Sie diese gemütliche 2-Zimmer-Wohnung im Erdgeschoss eines kleinen Mehrfamilienhauses mit nur sechs Wohneinheiten. Sie befindet sich idyllisch gelegen direkt an der Wurzacher Ach. Eine kleine Fußgängerbrücke führt direkt in die charmante Innenstadt von Bad Wurzach - ideal, um das Leben im Herzen der Kur- und Einkaufsstadt in vollen Zügen zu genießen.
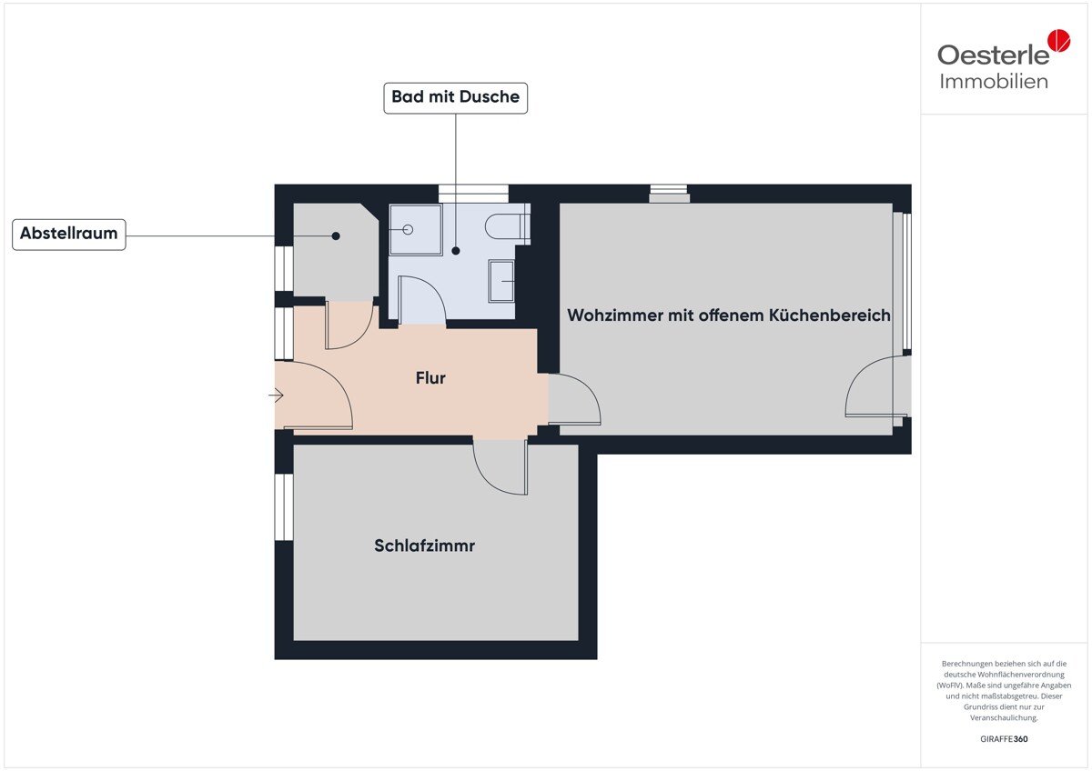
Die Erdgeschosswohnung mit sonniger Terrasse überzeugt durch eine gut durchdachte Raumaufteilung und helle Wohnbereiche. Im Abstellraum kann Waschmaschine und Trockner übereinander gestellt werden. Die Bodenbeläge können noch in allen Räumen frei gewählt und nach eigenen Vorstellungen umgesetzt werden.
Der separate Hauseingang sorgt für ein hohes Maß an Privatsphäre und unterstreicht den wohnlichen Charakter dieses Angebots.
Die Zufahrt zur Wohnung für über eine Sackgasse und ist deshalb sehr ruhig gelegen.
Das Gebäude verfügt über eine Gaszentralheizung, die vom gegenüberliegenden Gebäude mit versorgt wird.
Die Kombination aus zentraler Lage, angenehmer Ruhe und praktischer Raumaufteilung macht diese charmante Wohnung zu einem echten Wohnjuwel in Bad Wurzach.
Vereinbaren Sie gerne einen Besichtigungstermin - wir freuen uns auf Ihre Anfrage!
Das Objekt befindet sich im Zentrum der kleinen Kur- und Einkaufsstadt Bad Wurzach, direkt an der Wurzacher Ach. Sämtliche Einrichtungen des täglichen Bedarfs sind fußläufig gut erreichbar. Das nächste Lebensmittelgeschäft ist nur ca. 500 m entfernt und zu Fuß in ca. 5 Minuten zu erreichen.
- Wohnzimmer mit offenem Küchenbereich und Zugang zur Terrasse
- Schlafzimmer
- Badezimmer mit Dusche , Waschbecken , WC
- Abstellraum mit Waschmaschinenanschluss
- Keller
- Terrasse
- Sep.Eingang
Bitte beachten Sie, dass der ausgeschriebene Kaufpreis freibleibend ist. Bei entsprechend großer Nachfrage behält sich der Verkäufer vor, das Objekt gegen Höchstgebot zu verkaufen (es handelt sich jedoch um kein Bieterverfahren!).
Für die Richtigkeit der Angaben übernehmen wir keine Haftung, haben diese jedoch plausibilisiert.
© 2025 - Oesterle GmbH