Drucken Alle Bilder Nur Hauptbild Keine Bilder Fenster schließen
Oesterle GmbH Immobilien

Büro Leutkirch (Allgäu)

Memminger Straße 8
88299 Leutkirch

Telefon: +49 (0) 7561 / 820 91 - 50
info@oesterle-immobilien.de

Büro Lindau (Bodensee)

Langenweg 39
88131 Lindau

Telefon: +49 (0) 8382 / 279 280 - 0
lindau@oesterle-immobilien.de

Büro Stuttgart

Stuttgarter Straße 83
70469 Stuttgart

Telefon: +49 (0) 711 / 220 594 47
stuttgart@oesterle-immobilien.de

Vielseitig nutzbare Gewerbeimmobilie (Halle/Ausstellung/Werkstatt) in Leutkirch zu vermieten

Objektdaten

KennungMG0127
Lage88299
Baujahr1965
Gesamtfläche374.00 m²
Miete2700.00 €
Nebenkosten350.00 €
Miete inkl. NK3050.00 €
Provision für Mieter12,38 Kaltmieten inkl. MwSt

Energieangaben

Energieausweistyp *Bedarf
Ausweis gültig bis21.06.2035
Befeuerung/Energieträger Öl
Baujahr1965
* Der oben genannte Energiekennwert spiegelt den Energieverbrauch in Kilowattstunden pro Jahr und Quadratmeter (kWh/(a⋅m²)) wieder und liefert den tatsächlichen errechneten Energieverbrauch der Immobilie. Weitere Informationen finden Sie hier unter de.wikipedia.org/wiki/Energiebedarfsausweis

Objektbeschreibung

Objektbeschreibung:
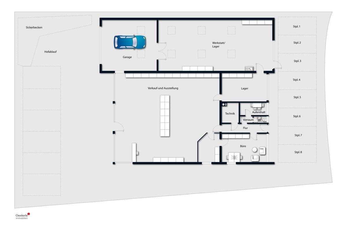
Zur Vermietung steht eine vielseitig nutzbare Gewerbeimmobilie mit einer Gesamtfläche von ca. 374 m². Die Immobilie bietet eine Kombination aus Verkaufs-, Büro-, Lager- und Werkstattflächen und eignet sich für unterschiedlichste gewerbliche Nutzungen.

Flächenaufteilung:
Verkaufs-/Ausstellungsfläche: ca. 161 m² - heller und großzügiger Raum
Bürofläche: ca. 22 m²
Nebenflächen: ca. 43 m² (getrennte Toiletten, Lagerraum, Technikraum)
Der Lagerraum mit ca. 22 m² verfügt über ein elektrisches Sektionaltor mit integrierter Außentüre.
Werkstatt/Lagerfläche: ca. 148 m² - aktuell unterteilt durch eine Leichtbauwand in Werkstatt/Lager und Doppelgarage. Der Werkstattbereich verfügt über ein elektrisches Sektionaltor auf der Nordseite, die Doppelgarage über ein weiteres Sektionaltor auf der Südseite.

Gebäudeinformationen:
Baujahr ca. 1965, ursprünglich mit Flachdach
Nachträgliche Erneuerung des Dachs durch ein gedämmtes Satteldach (Jahr unbekannt)
Ca. 2008: Dämmung der Außenwände und Renovierung des Objekts
Ca. 2015: Erweiterung der Halle (Werkstatt mit Garage) auf der Westseite
Ca. 2024: Erneuerung des Dachs des Anbaus

Bauweise:
Massivbauweise
Bauabschnitt 1: Satteldach mit Trapezblechdeckung, gedämmt
Bauabschnitt 2: Flachdach mit Trapezblechdeckung, gedämmt
Beheizung durch Öl-Zentralheizung

Außenbereich:
Große Hoffläche mit ca. 17 Stellplätzen im Freien


Diese Immobilie bietet vielfältige Nutzungsmöglichkeiten und eine gute Infrastruktur. Kontaktieren Sie uns gerne für weitere Informationen oder eine Besichtigung.

Lage

Ideale Lage für eine Gewerbeimmobilie. Das Grundstück liegt im Geltungsbereich eines Bebauungsplans in einem Mischgebiet. Die Autobahnauffahrt auf die A96 ist nur 1,7 Km entfernt, das Standzentrum nur ca. 1 Km.

Die Stadt Leutkirch im Allgäu:

Leutkirch im Allgäu mit ca. 24.000 Einwohnern liegt als wirtschaftsstarkes Mittelzentrum, in traumhafter Voralpenlandschaft im Westallgäu (Baden-Würrtemberg) in verkehrsgünstiger Lage direkt an der Autobahn (A 96) zwischen Memmingen und Lindau.

Die Stadt verfügt über eine starke Wirtschaft mit einem gesunden Branchenmix, eine hervorragende Infrastruktur sowie ein breit gefächertes Angebot des täglichen Bedarfs. Ein umfassendes Schulangebot und flexible Kinderbetreuungseinrichtungen am Ort sichern ein hohes Niveau an Ausbildung und eine Rundum-Versorgung nach dem Motto "Wohnen und Arbeiten in Leutkirch"

Die beliebte schöne Allgäuer Landschaft rings um Leutkirch, ist auch für Sportler und Aktivurlauber ein Traum. Über die Grenzen hinaus bekannt ist Leutkirch durch den Ferienpark CenterParcs. Hierdurch erfährt die Stadt einen zusätzlichen positiven wirtschaftlichen Impuls.

Die nahe gelegenen Städte Kempten und Memmingen und die herrliche Bodenseeregion bieten zusätzlich eine Vielzahl an Einkaufs- und Erlebnismöglichkeiten. Auch Großstädte wie München (ca. 1,5 h Autofahrt) und Stuttgart (ca. 2h Autofahrt) sind dank der guten Autobahnanbindung, zügig zu erreichen. Die nächsten Flughäfen befinden sich in Memmingen (ca. 25 Km ) und Friedrichshafen (ca. 50 km).

Sonstiges

Die Miete, sowohl Kaltmiete als auch Nebenkosten, versteht sich zzgl. gesetzl. MwSt.

1) Die o. g. Provision bezieht sich auf den angegebenen Kaufpreis und versteht sich inklusive der jeweils gesetzlich gültigen Mehrwertsteuer. Sie wird vom Käufer getragen und ist verdient und zahlbar an den Nachweis-/Vermittlungsmakler bei Kaufvertragsabschluss.
Alle Angaben nach Auskunft des Eigentümers.
Provisionshinweis: Für die genannten Angaben können wir keine Gewähr übernehmen, es handelt sich um Angaben des Verkäufers. Wir haben die Angaben nicht überprüft und keine Register eingesehen (z.B. Grundbuch, Baulastenverzeichnis). Daher beschränkt sich unsere Haftung auf grobe Fahrlässigkeit oder Vorsatz.

© 2026 - Oesterle GmbH