
Büro Leutkirch (Allgäu)
Memminger Straße 8
88299 Leutkirch
Telefon: +49 (0) 7561 / 820 91 - 50
info@oesterle-immobilien.de
Büro Lindau (Bodensee)
Langenweg 39
88131 Lindau
Telefon: +49 (0) 8382 / 279 280 - 0
lindau@oesterle-immobilien.de
Büro Stuttgart
Stuttgarter Straße 83
70469 Stuttgart
Telefon: +49 (0) 711 / 220 594 47
stuttgart@oesterle-immobilien.de

















Zur Vermietung stehen Gewerbeflächen mit vielseitigen Nutzungsmöglichkeiten als Einzelhandel, Gastronomie, Büro, Praxis, Ausstellung, Events .... und vieles mehr.
Die Gewerbeimmobilie besticht durch die absolute 1A-Lage in der Fußgängerzone, große Schaufensterflächen und großen, zusammenhängenden Flächen, die als großer Raum genutzt werden oder auch flexibel nach den Vorstellungen des Mieters unterteilt werden können.
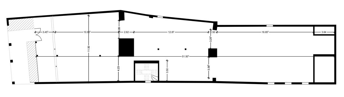
Die Flächen können frei gewählt werden zwischen 200 m² und ca. 550 m² im Erdgeschoss und ca. 250 m² im 1. Obergeschoss, also gesamt bis zu 800 m². Die Fläche im 1. Obergeschoss kann entweder über ein separates Treppenhaus oder direkt aus den Gewerbeflächen im Erdgeschoss erschlossen werden.
Aktuell findet der Rückbau des Bestands statt (Zustand Fotos). Die Vermieter sind bereit, bei einer entsprechenden Laufzeit des Mietvertrags die Flächen nach den Vorstellungen des Mieters umzubauen und zu sanieren.
______________________________________________________________________________________________
Den 360°-Rundgang können Sie über den QR-Code bei den Bildern oder über diesen Link anschauen: https://tour.giraffe360.com/c6e33081c8194bf18b6967d9ff058b4d
Die angebotene Gewerbefläche (Einzelhandel/Gastro/Dienstleistung) befindet sich in absoluter 1A-Lage im Herzen der historischen Altstadt von Isny im Allgäu. Direkt in der stark frequentierten Fußgängerzone gelegen, profitiert die Immobilie von einer hervorragenden Sichtbarkeit und einer hohen Passantenfrequenz. Der Standort ist geprägt von attraktiven Einzelhandelsgeschäften, Gastronomie sowie vielfältigen Dienstleistungsangeboten, die eine lebendige Einkaufsatmosphäre schaffen.
Isny im Allgäu verfügt über ein Einzugsgebiet von rund 30.000 Personen, das die Stadt als zentralen Versorgungsstandort der Region etabliert. Neben der Funktion als Einkaufs- und Versorgungszentrum zeichnet sich Isny durch seine hohe touristische Bedeutung aus. Als anerkannter Luftkurort am Rande des Allgäus zieht die Stadt jährlich zahlreiche Gäste aus dem In- und Ausland an. Die malerische Altstadt, ein breites Freizeitangebot sowie die Nähe zu beliebten Ausflugszielen wie dem Bodensee, den Allgäuer Alpen oder dem benachbarten Österreich sorgen für eine stetig wachsende Besucherzahl.
In Kombination aus lokaler Kaufkraft, regionalem Einzugsgebiet und touristischem Zustrom ergibt sich ein hochattraktiver Standort für Einzelhändler, Gastronomen oder Dienstleistern mit hervorragenden Umsatzpotenzialen.
© 2025 - Oesterle GmbH